Wir planen die Zukunft: Ein transparenter Bau, damit die Tiere den Alltag erleben können, mit Sichtkontakt zu Menschen und Artgenossen.


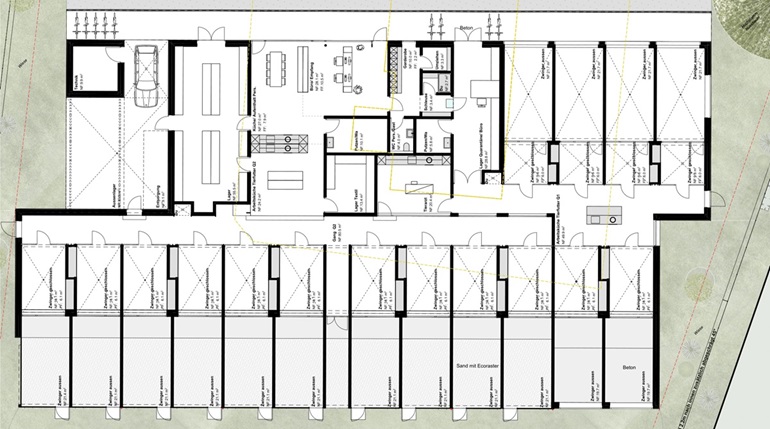
Grundriss des Gebäudes der Tollwut Quarantäne Station Grundriss des Gebäudes der Tollwut Quarantäne Station Visualisierung des Gebäudes der Tollwut Quarantäne Station Visualisierung des Gebäudes der Tollwut Quarantäne Station Visualisierung des Gebäudes der Tollwut Quarantäne Station Visualisierung des Gebäudes der Tollwut Quarantäne Station Visualisierung des Gebäudes der Tollwut Quarantäne Station Visualisierung des Gebäudes der Tollwut Quarantäne Station Visualiserung der Innenausrichtung der Tollwut Quarantäne Station Visualiserung der Innenausrichtung der Tollwut Quarantäne Station Visualiserung der Innenausrichtung der Tollwut Quarantäne Station Visualiserung der Innenausrichtung der Tollwut Quarantäne Station Visualiserung der Innenausrichtung der Tollwut Quarantäne Station Visualiserung der Innenausrichtung der Tollwut Quarantäne Station